Refurbishment

Refurbishment in London E8

Intro

Project Description

This is a great little independent, family run business. This Bakery is near Dalston Junction station, in London. For over 20 years they have been baking, fresh, daily, Caribbean Breads, Cakes & Patties. And to carry on this great business the shop needed an update in space layout, machinery and a front of shop face lift.

Work Progress

In K-Architecture we worked closely with our client into achieving the right design layout he required to help the business run smoothly and efficient. We assisted him in his planning application and building regulation drawings to submit to the council.

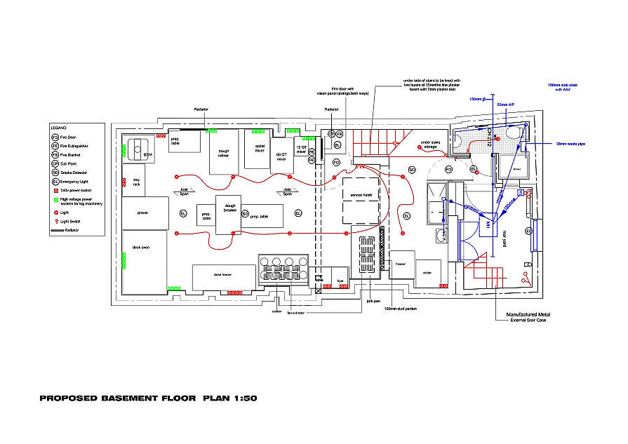
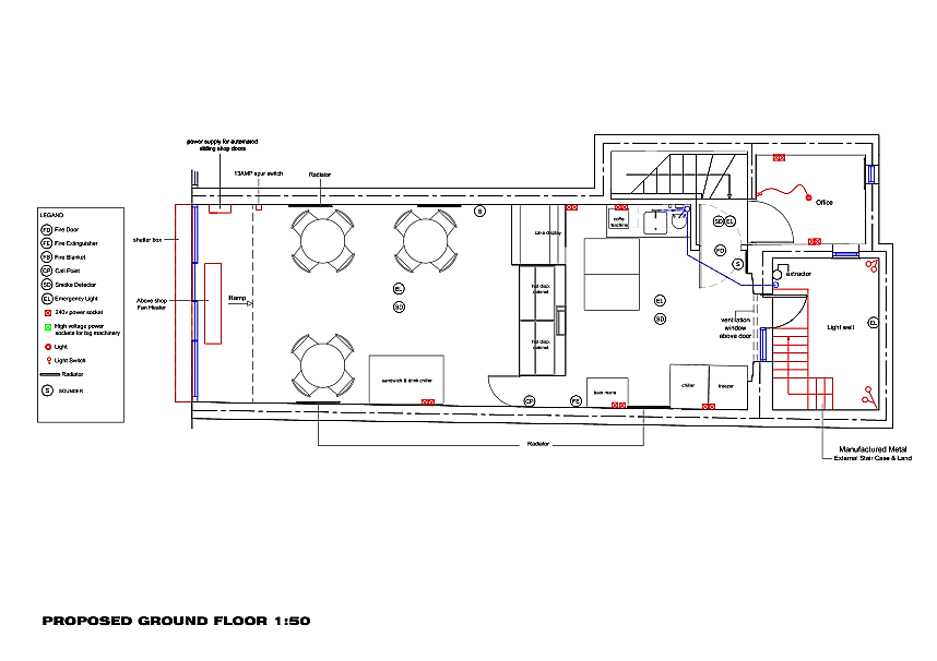
Technical Drawings

These drawings consists of existing and proposed ground and basment drawings, reflective ceiling plan, Shop long section, proposed ramp sectiondetails, proposed false ceiling light plan and fire door details.

Let’s Build Something

K-ARCHITECTURE LIMITED

0044 798 463 4709
0044 776 628 2364

info@k-architecture.co.uk

Union Cafe 104 Landor Road,
SW9 9NX, London, UK