Extension

Extension In Cheltenham GL51

Intro

Project Description

This proposed Extension is intended to accommodate a single person to be precise my client’s son who is entering university. This space will create a perfect study atmosphere and sleeping area. as you can see from the floor plans the property enjoys a generous are of garden space, but lacks larger bedrooms. Thus, resulting my client in living at an overcrowded House

Working Progress

My client manage to start on this extension project once his planning application was granted by the council. The build took about 6 month to be completed in September in 2017.

 

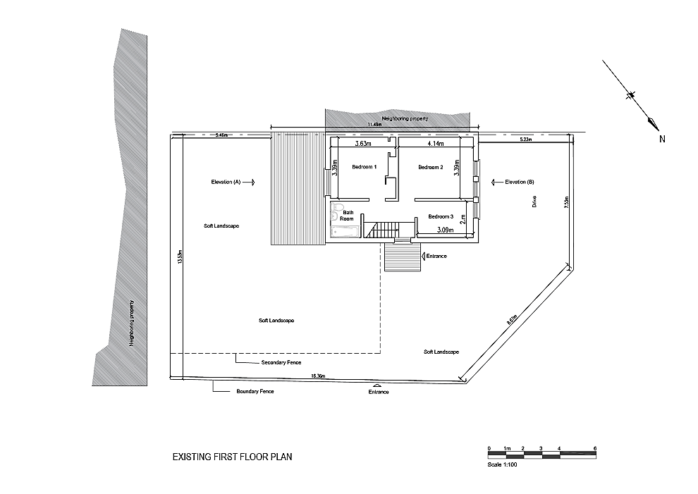
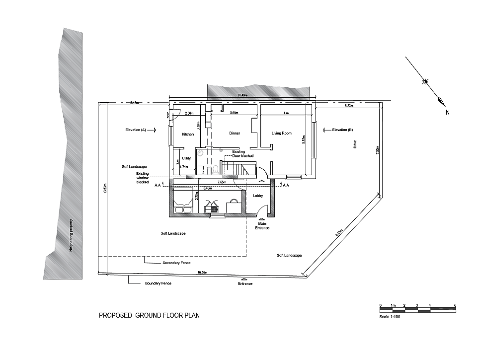
Technical Drawings

These are the technical drawings that has been submitted to the council which shows the existing ground and first floor, proposed ground and first floor with side and front elevations of the property.

Let’s Build Something

K-ARCHITECTURE LIMITED

0044 798 463 4709
0044 776 628 2364

info@k-architecture.co.uk

Union Cafe 104 Landor Road,
SW9 9NX, London, UK