Conversion & Rear Extension

CONVERSION & REAR EXTENSION IN BIRMINGHAM B7

Intro

Project Description

This proposed Conversion of a warehouse to bakeray with a rear extension added to it. 

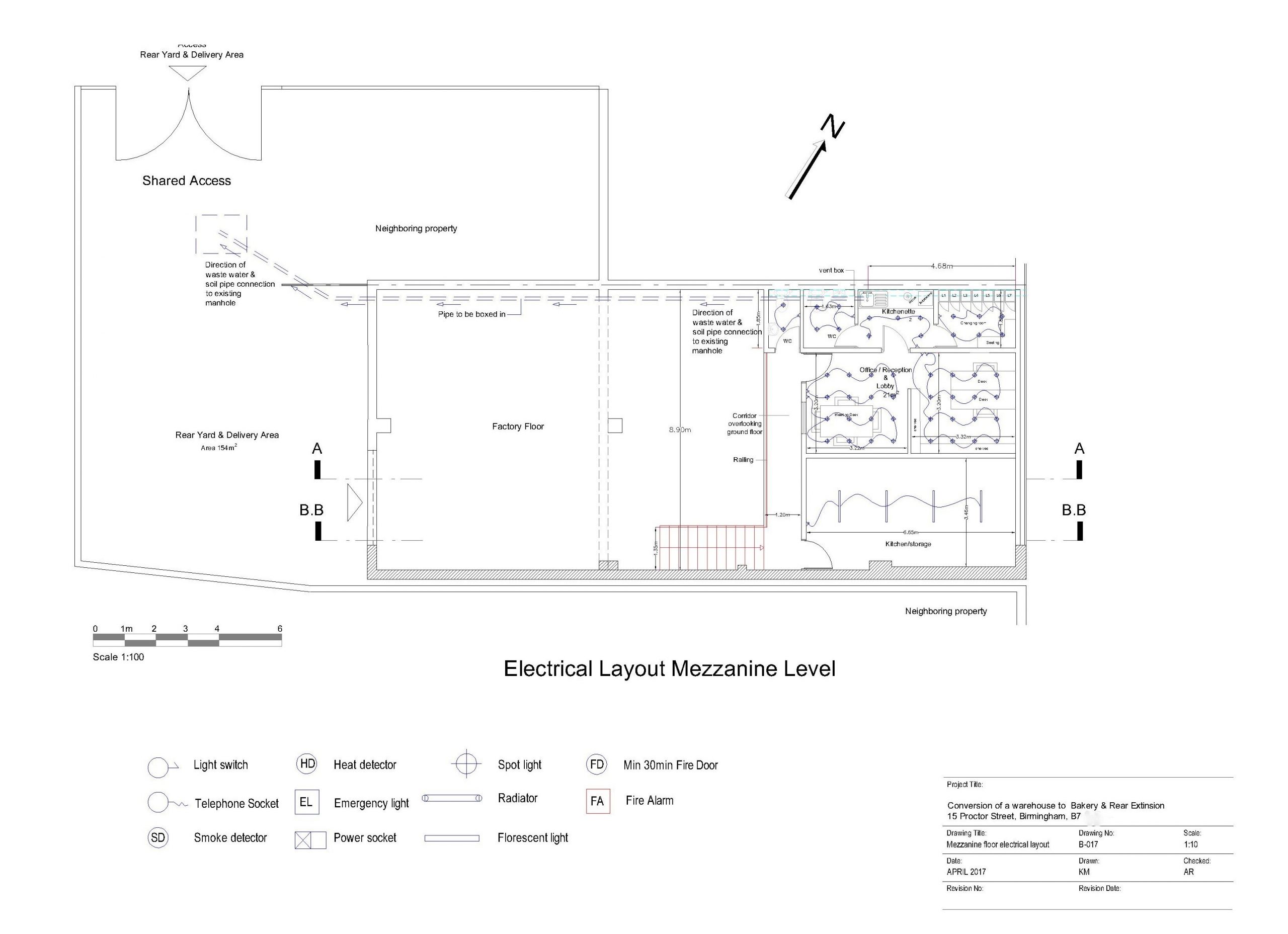
Photos & Technical Drawings

These are the technical drawings and the exsisting photos of the property that has been submitted to the council which shows the existing ground floor, proposed ground floor with the rear extension added. 

Project was completed November 2017

Let’s Build Something

K-ARCHITECTURE LIMITED

0044 798 463 4709
0044 776 628 2364

info@k-architecture.co.uk

Union Cafe 104 Landor Road,
SW9 9NX, London, UK